WONDERFUL APARTMENT IN RESIDENCE WITH A VIEW. | Condo in Sestriere

1 Bedroom Condo in Sestriere
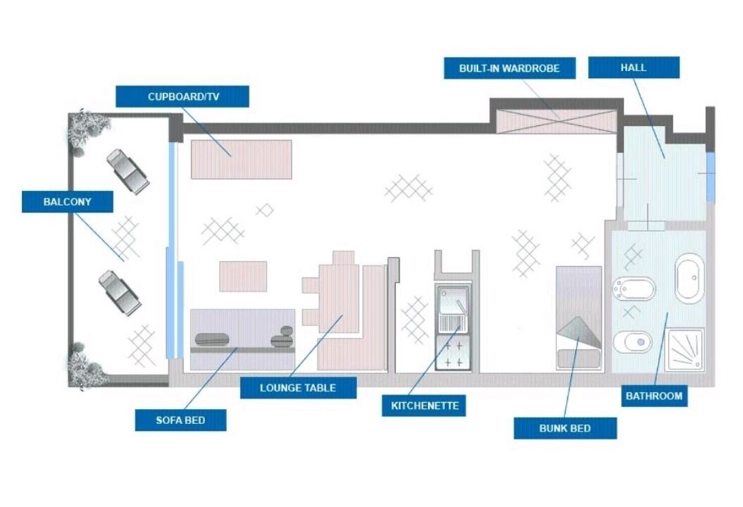
Located in Sestriere, this 1-bedroom, 1-bathroom condo lets you experience it all. Fans of nature and the outdoors will love being within a 5-minute walk of Susa Valley and Chisone Valley. There's convenient covered onsite parking, so you can leave your vehicle behind and head out to Sestriere Ski Area and Via Lattea Ski Area, just a short walk away.
You'll find the convenience of a sofa bed available during your stay.
WONDERFUL APARTMENT IN RESIDENCE WITH A VIEW is located in Sestriere. WONDERFUL APARTMENT IN RESIDENCE WITH A VIEW provides accommodation, featuring Kitchen, Parking, Pet Friendly, among other amenities. This Condo features Kitchen, Parking, Pet Friendly, to make your stay a comfortable one.
WONDERFUL APARTMENT IN RESIDENCE WITH A VIEW has 1 Bedroom , 1 Bathroom, and max occupancy of 5 people. The minimum rental for this property is 1 nights, but this can change depending on the season you plan on staying. Previous guests have given good rated it, and VRBO labeled it a top-rated Condo because of the excellent services rendered by the owner or manager of this Condo, and has consistently provided great experiences for their guests. Most families or guests that use it recommend it to their friends and some of them are repeat guests. Condo has a friendly neighborhood, and the Sestriere has interesting places to visit. If you want to learn more about the Condo in Sestriere, such as places to visit and things to do nearby, you can check below to learn more.
Amenities
Facility Overview
-
Bidet
-
Shower
-
1 bathroom
-
Sofa bed
-
1 bedroom
-
Breakfast available for a fee
-
Microwave
-
Onsite parking options include a garage
-
Onsite parking
-
2 total pets
-
Pet friendly
-
Smoke-free property
-
Carbon monoxide detector installed (host has indicated there is a carbon monoxide detector on the property)
-
Smoke detector installed (host has indicated there is a smoke detector on the property)
Policies
Extra-person charges may apply and vary depending on property policy government-issued photo identification and a credit card, debit card, or cash deposit may be required at check-in for incidental charges host has indicated there is a carbon monoxide detector on the property host has indicated there is a smoke detector on the property parties and events (including family gatherings and birthday parties) are allowed on site; maximum attendees: 6 special requests are subject to availability upon check-in and may incur additional charges; special requests cannot be guaranteed this property accepts cash this property is managed through our partner, vrbo. you will receive an email from vrbo with a link to a vrbo account, where you can change or cancel your reservation