85 m² House ∙ 2 bedrooms ∙ 4 guests | House in Bedero

| 10.0 (48 Reviews) |   2 Bedrooms  2 Bathrooms  4 Guests  914 ft²
Brezzo di Bedero House | 85 m² House ∙ 2 bedrooms ∙ 4 guests

2 Bedroom House in Brezzo di Bedero, Bedero

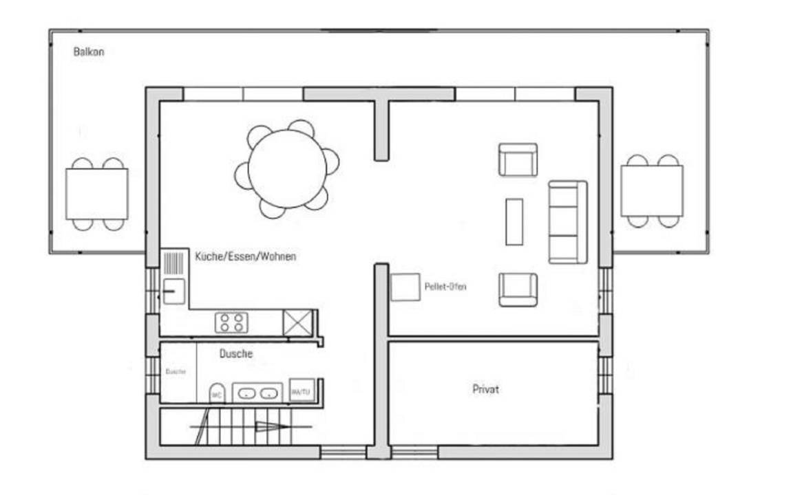
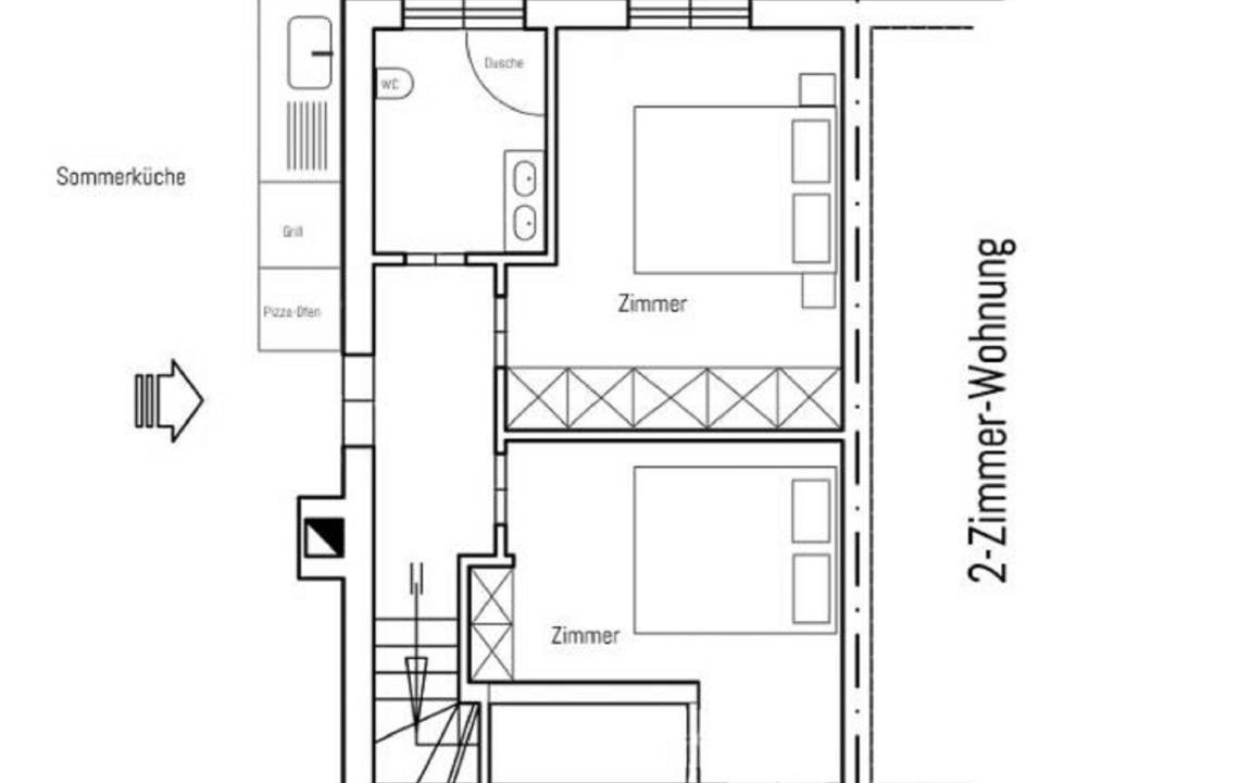
Our holiday home at Lake Maggiore, which was newly renovated inside in 2012/2017, is situated in a prime location with a beautiful view in Brezzo di Bedero (5 km south of Luino) and can accommodate 4 people. (In the northern part of the house, there is a small two-room apartment that is also rented out.)
On the ground floor, there is a small entrance, the two bedrooms with double beds (modern spring mattresses), and a bathroom with a shower and double sink.
On the first floor, there is the second bathroom, also with a shower/rain shower, double sink, and a washing machine/tumbler. The modern, well-equipped kitchen includes a 4-burner gas stove, electric oven, dishwasher, large refrigerator with freezer compartment, as well as a Nespresso and a conventional coffee machine. A toaster, blender, juicer, ample crockery and cutlery, and glasses for wine, beer, and water are available. There is a round dining table with six chairs.
The spacious living room is furnished with a sofa and two chaise longues. It also houses a pellet stove and a television.
The large balcony with a view of the lake wraps around the holiday home on three sides (east/south/west). It is equipped with a table and four chairs on both the east and southwest sides.
The holiday home has central heating with central hot water supply and an additional wood pellet stove. It is suitable for occupancy in both summer and winter.
Outside, you will find a summer kitchen with a wood-fired pizza oven, grill, and sink. The garden is furnished with a dining table and chairs as well as sun loungers and is not overlooked.
From the garden and the large terrace, you can enjoy a beautiful view of Lake Maggiore. The three sides of the holiday home face east, south, and west, so you can enjoy the sun from morning until sunset.
The holiday home is located at the end of a cul-de-sac and is very quiet. It also has internet access.

Show more

Amenities

Parking
TV
Fireplace/Heating
Guest Services
Child Friendly
Internet
Kitchen
Laundry

Area Surrounding

Beach
1 km
Restaurant
1 km
Shopping
8 km
Center
1 km
Check House Availability
Nightly rates from:
USD $126
You will be redirected to  
Hot Deal - It has been viewed 10 times today
Not the right fit? Check out our other properties in Brezzo di Bedero
Property Image From $140
         

9.2 (18 Reviews)
Apartment
  • Parking
  • Pet Friendly
  • Pool
Property Image From $126
         

|
10.0 (48 Reviews)
House
  • 914 ft² House
  • Parking
  • TV
  • Fireplace/Heating
Property Image From $69
         

Property Image From $82
         

|
9.1 (48 Reviews)
Apartment
  • Parking
  • Pet Friendly
  • View
Property Image From $76
         

|
10.0 (25 Reviews)
Apartment
  • 376 ft² Apartment
  • Parking
  • Fireplace/Heating
  • Guest Services
Property Image From $182
         

|
9.1 (34 Reviews)
House
  • Parking
  • Pet Friendly
  • View
Property Image From $113
         

10.0 (3 Reviews)
Apartment
  • 947 ft² Apartment
  • Parking
  • Pool
  • TV
Property Image From $134
         

|
9.0 (3 Reviews)
Apartment
  • Parking
  • Pool
  • View
Property Image From $456
         

|
9.0 (1 Review)
Apartment
  • Air Conditioner
  • Parking
  • Pet Friendly
Property Image From $165
         

|
9.0 (1 Review)
Villa
  • Parking
  • Security/Safety
  • Sports/Activities
Property Image From $151
         

|
8.6 (5 Reviews)
House
  • Parking
  • View
  • Security/Safety
Property Image From $206
         

Property Image From $392
         

9.0 (10 Reviews)
Apartment
  • Parking
  • Pet Friendly
  • TV
Property Image From $183
         

8.8 (10 Reviews)
Apartment
  • Parking
  • Pet Friendly
  • TV